Thang máy không phòng máy: Cấu tạo, kích thước, báo giá
Trong bài viết này, hãy cùng Cibes Lift Việt Nam tìm hiểu chi tiết về sản phẩm, bao gồm cấu tạo, ưu - nhược điểm, kích thước thang máy không phòng máy cũng như so sánh với loại thang máy thông thường ngay dưới đây.
Mục lục
1. Thang máy không phòng máy là gì?
Thang máy không phòng máy hay còn gọi thang máy không buồng máy được thiết kế với máy kéo đặt trong giếng thang và tủ điện, được bố trí trước cửa tầng trên cùng hoặc bên ngoài thang tùy trường hợp, nên không cần phải xây thêm phòng máy.
Với thang máy không phòng máy Cibes thì phòng máy được thiết kế tích hợp trong thang vừa giúp tiết kiệm diện tích không gian, tiết kiệm năng lượng điện tiêu thụ, đồng thời tăng tính thẩm mỹ, sang trọng cho ngôi nhà của bạn

Thang máy không phòng máy được thiết kế loại bỏ phòng máy, giúp tối ưu không gian sống của bạn
2. Cấu tạo của thang máy không phòng máy
Thang máy không phòng máy được thiết kế để tích hợp toàn bộ hệ thống vận hành trong giếng thang, không cần xây dựng phòng máy riêng phía trên. Cấu tạo cơ bản gồm các bộ phận sau:
| Bộ phận | Chức năng | Vị trí lắp đặt |
| Cabin | Không gian chở người hoặc hàng, gồm khung cabin, vách, sàn và bảng điều khiển bên trong | Bên trong giếng thang |
| Hệ thống dẫn hướng (ray) | Giữ cabin di chuyển ổn định theo phương thẳng đứng, hạn chế rung lắc | Cố định dọc theo giếng thang |
| Động cơ và hệ truyền động | Tạo lực nâng và hạ cabin thông qua cáp kéo, puly hoặc cơ cấu truyền động khác | Lắp trong giếng thang, thường ở phía trên |
| Tủ điều khiển | Điều khiển toàn bộ hoạt động, xử lý tín hiệu gọi tầng và vận hành | Tích hợp trong giếng thang hoặc lắp đặt phía sau vách bảng điều khiển trong giếng thang (tuỳ theo thiết kế nhà sản xuất) |
| Cửa thang | Đảm bảo an toàn khi ra vào và kiểm soát điểm dừng tại từng tầng | Cabin và các tầng sử dụng |
| Giếng thang | Không gian kỹ thuật để lắp đặt toàn bộ hệ thống thang máy | Được đặt cạnh cầu thang bộ, giữa cầu thang bộ, góc nhà… (tùy theo thiết kế của từng nhà) |
| Hệ thống an toàn | Bao gồm thanh an toàn, viền an toàn, mành hồng ngoại, cảm biến quá tải, hệ thống cứu hộ, điện thoại liên lạc khẩn cấp và các thiết bị bảo vệ khác | Tích hợp bên trong thang máy |
3. Kích thước thang máy không phòng máy
Một số yếu tố ảnh hưởng đến kích thước của thang máy không phòng máy có thể kể đến như:
- Công nghệ thang: Từng công nghệ tích hợp trong thang máy sẽ yêu cầu điều kiện lắp đặt khác nhau, từ đó mà kích thước thang máy cũng sẽ khác nhau.
- Thiết kế của nhà sản xuất: Các thông số kích thước của thang máy không phòng máy có thể chênh lệch tuỳ theo kích thước của mỗi nhà sản xuất.
Dưới đây là tổng hợp kích thước thang máy không phòng máy của 2 mức tải trọng phổ biến nhất là 300kg và 400 - 500kg:
3.1. Kích thước thang máy không phòng máy tải trọng 300kg
| Tải trọng | Kích thước | Sàn thang (mm) | Giếng thang (mm) | Thông thủy (mm) | |||
| D | R | D | R | D | R | ||
| 300kg | XS | 600 | 830 | 960 | 882 | 1020 | 980 |
| S | 800 | 830 | 1160 | 882 | 1220 | 980 | |
| S | 900 | 830 | 1260 | 882 | 1320 | 980 | |
| S | 1000 | 830 | 1360 | 882 | 1420 | 980 | |
| S | 800 | 930 | 1160 | 982 | 1520 | 1080 | |
| S | 900 | 930 | 1260 | 982 | 1320 | 1080 | |
| S | 1000 | 930 | 1360 | 982 | 1320 | 1080 | |
| S | 1100 | 930 | 1460 | 982 | 1220 | 1080 | |
3.2. Kích thước thang máy không phòng máy tải trọng 400 - 500kg
| Tải trọng | Kích thước | Sàn thang (mm) | Giếng thang (mm) | Thông thủy (mm) | |||
| D | R | D | R | D | R | ||
| 400 - 500kg | M | 800 | 1217 | 1160 | 1265 | 1320 | 1380 |
| M | 900 | 1217 | 1260 | 1265 | 1320 | 1380 | |
| M | 1000 | 1267 | 1360 | 1315 | 1420 | 1430 | |
| L | 1000 | 1367 | 1360 | 1415 | 1420 | 1530 | |
| L | 1100 | 1367 | 1460 | 1415 | 1520 | 1530 | |
| L | 900 | 1467 | 1260 | 1515 | 1320 | 1630 | |
| L | 1000 | 1467 | 1360 | 1515 | 1420 | 1630 | |
| L | 1100 | 1467 | 1460 | 1515 | 1520 | 1630 | |
| XL | 1100 | 1597 | 1460 | 1645 | 1520 | 1760 | |

Kích thước thang máy không phòng máy size S thang máy Cibes Voyager V80i
Xem thêm: Kích thước thang máy gia đình chuẩn hiện nay
4. Ưu - nhược điểm của thang máy không phòng máy
Thang máy không phòng máy có nhiều ưu điểm như:
- Vận hành ổn định - Sử dụng động cơ không hộp số - đây là loại động cơ công nghệ mới, cho khả năng vận hành ổn định, êm ái hơn.
- Tiết kiệm điện năng - Có thể tiết kiệm 25% điện năng tiêu thụ so với thang máy có phòng máy. Với các sản phẩm có công nghệ ưu việt, vượt trội như Cibes thì bạn thậm chí có thể tiết kiệm đến 40% điện năng tiêu thụ.
- Giảm thiểu ô nhiễm môi trường - Không cần định kỳ tra dầu động cơ do sản phẩm sử dụng máy kéo không hộp số. Do đó, thang máy không phòng máy có thể giúp giảm thiểu ô nhiễm môi trường.
- Tiết kiệm chi phí xây dựng - Không phải xây dựng phòng máy nên tiết kiệm được chi phí xây dựng.
- Tính thẩm mỹ - Tính thẩm mỹ cao cho không gian sống của bạn.
Tuy có nhiều ưu điểm nhưng loại thang máy này cũng có một số các nhược điểm như:
- Giá thành sản phẩm thường cao hơn so với loại có phòng máy, do đó việc tham khảo trước báo giá thang máy không phòng máy là điều rất cần thiết để cân nhắc ngân sách phù hợp
Trải nghiệm thực tế của chú Tùng khi sử dụng thang máy trục vít, không phòng máy của Cibes
Chú Trần Tùng, cư dân tại khu đô thị Son Villa, TP. Thủ Đức, đã chia sẻ hành trình tìm kiếm và lắp đặt thang máy Cibes Voyager V80i cho ngôi nhà đã hoàn thiện của mình. Với đặc thù nhà trong khu độ thị có cầu thang nhỏ hẹp và không gian hạn chế, việc lựa chọn loại thang máy phù hợp là một thách thức lớn. Đặc biệt, ngôi nhà của ông Tùng có hầm nước dưới gầm cầu thang và tầng trên cùng không được phép sử chữa khiến phương án thang máy không phòng máy trở nên lý tưởng.
Sau khi tìm hiểu kỹ lưỡng, chú Tùng đã quyết định chọn thang máy trục vít của Cibes bởi những ưu điểm vượt trội: khả năng vận hành êm ái, không gây tiếng ồn, và đặc biệt là thiết kế không cần hố pít sâu (chỉ 7cm) cùng không cần phòng máy hay tần tum. Điều này không chỉ giúp tiết kiệm không gian tối đa mà còn giảm thiểu tác động đến kết cấu ngôi nhà – một giải pháp hoàn hảo cho những công trình đã xây dựng. Bạn có thể xem thêm bản vẽ thang máy không phòng máy để hình dung rõ hơn cách lắp đặt phù hợp với từng kiểu công trình cụ thể.
Chú Tùng cũng đặc biệt ấn tượng với dịch vụ của Cibes: từ đội ngũ tư vấn tận tâm, chuyên nghiệp, đến dịch vụ bảo trì kỹ lưỡng và phản ứng nhanh chóng khi có sự cố. Đối với ông, ở độ tuổi trên U70, chiếc thang máy không chỉ mang lại sự tiện lợi khi di chuyển giữa các tầng, đặc biệt khi phải lên xuống nhiều lần trong ngày, mà còn góp phần bảo vệ sức khỏe, tránh áp lực lên chân khớp. Trải nghiệm của ông Trần Tùng là minh chứng sống động cho thấy thang máy không phòng máy Cibes chính là lựa chọn tối ưu, mang lại tiện nghi và giá trị sống bền vững cho gia đình.
Chú Tùng chia sẻ về trải nghiệm sử dụng thang máy không có phòng máy của Cibes
5. So sánh thang máy không phòng máy và thang máy có phòng máy
Bảng sau đây sẽ giúp bạn dễ dàng hơn trong việc hình dung về cấu tạo, ưu nhược điểm riêng biệt của 2 dòng thang phổ biến nhất hiện nay: thang máy không phòng máy và thang máy có phòng máy.
| Tiêu chí | Thang máy không phòng máy | Thang máy có phòng máy |
| Phòng máy | Không có phòng máy. Sử dụng công nghệ trục vít được nâng lên xuống theo chiều động cơ qua hệ thống bánh răng. | Có phòng máy ở tầng trên cùng để đặt tủ điện, máy kéo |
| Máy kéo | Sử dụng động cơ không có hộp số, kích thước nhỏ gọn, tiết kiệm diện tích xây dựng | Sử dụng loại hộp giảm tốc trục vít (hộp số) hoặc loại không có hộp giảm tốc trục vít (không có hộp số) |
| Tòa nhà bị khống chế chiều cao | Dành cho những công trình bị hạn chế về chiều cao như nhà phố, nhà cải tạo.. | Gặp bất lợi trong lắp đặt thang máy vì chiều cao phòng máy thông thường từ 2400 mm |
| Tối ưu không gian | Không gian tầng trên cùng của công trình được tối ưu và tận dụng một cách triệt để | Khả năng tối ưu không gian hạn chế |
| Trải nghiệm vận hành | Vận hành êm ái | Không êm bằng thang máy không có phòng máy, xuất hiện độ trễ nhưng không đáng kể |
| Gây ô nhiễm môi trường | Thân thiện, an toàn, bảo vệ môi trường | Hộp dầu của hộp kỹ thuật cần phải bảo trì, bảo dưỡng thường xuyên, gây ô nhiễm |
| Tiết kiệm điện năng | Tiêu thụ 1.5kwh, giúp tiết kiệm điện năng tiêu thụ lên đến 45% | Không tốt bằng loại thang máy không phòng máy |
| Ưu điểm |
- Sử dụng động cơ không hộp số - đây là loại động cơ công nghệ mới, cho khả năng vận hành ổn định, êm ái hơn. - Tiết kiệm 25% điện năng tiêu thụ so với thang máy có phòng máy. Với các sản phẩm có công nghệ ưu việt, vượt trội như Cibes thì bạn thậm chí có thể tiết kiệm đến 45% điện năng tiêu thụ. - Giảm thiểu ô nhiễm môi trường vì không cần tra dầu động cơ định kỳ do sản phẩm sử dụng máy kéo không hộp số. - Không phải xây dựng phòng máy nên tiết kiệm được chi phí xây dựng. - Tính thẩm mỹ cao cho không gian sống của bạn. |
- Giá thành sản phẩm thường thấp hơn so với loại thang máy không phòng máy - Quá trình lắp đặt ban đầu dễ dàng nhưng khi máy vận hành thì gặp khó khăn trong quá trình bảo trì, bảo dưỡng, đồng thời chi phí cao hơn so với dòng thang máy không phòng máy |
| Nhược điểm |
- Giá thành sản phẩm thường cao hơn so với loại có phòng máy - Quá trình lắp đặt thang máy, bảo trì, bảo dưỡng đơn giản, tần suất ít và tiết kiệm chi phí hơn |
- Hạn chế như vận hành kém ổn định - Tốn điện năng khi sử dụng - Gây ô nhiễm môi trường, tốn kém chi phí xây dựng - Tính thẩm mỹ không cao |
| Bảo trì, bảo dưỡng | Đơn giản, tiết kiệm | Phức tạp, tốn kém hơn |
| Tần suất bảo trì, bảo dưỡng | Ít bảo hành, bảo dưỡng do thang máy vận hành ổn định, bền bỉ nhờ sự hỗ trợ của nam châm vĩnh cửu | Tần suất bảo hành, bảo dưỡng nhiều |
| Chi phí xây dựng phòng máy | Không phát sinh xây dựng phòng máy giúp giảm chi phi cho gia chủ | Gia chủ mất thêm chi phí xây dựng phòng máy từ 20 triệu - 40 triệu tùy loại thang |
| Giá thành | Thường cao hơn do tích hợp nhiều tính năng, công nghệ hiện đại hơn | Giá thành thấp hơn |
Với so sánh trên, chắc hẳn bạn cũng đã phần nào biết được ưu nhược điểm của thang máy không phòng máy cũng như thang máy thông thường, Mỗi dòng thang máy đều sở hữu những đặc điểm nhất định. Tùy vào từng nhu cầu kinh tế, điều kiện, không gian, diện tích nhà ở để lựa chọn sản phẩm thang máy phù hợp với gia đình mình. Tuy nhiên, dòng thang máy không phòng máy hiện đang là xu hướng hàng đầu bởi chất lượng đạt chuẩn châu Âu, đa dạng kích thước, thiết kế, trang bị nhiều tính năng toàn, không cần phòng máy, hố pít nông nên phù hợp nhà có diện tích hạn chế, nhà bị hạn chế chiều cao vì vậy được rất nhiều khách hàng tin tưởng lựa chọn.

Thiết kế thang ấn tượng, hiện đại
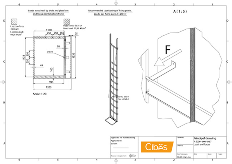
6. Bản vẽ thang máy không phòng máy
Dưới đây là bản vẽ thang máy không phòng máy, bạn có thể tham khảo:

Sơ lược bản vẽ thang máy không phòng máy

Bản vẽ thang máy gia đình Cibes

Bản vẽ thang máy không phòng máy cho nhà nhiều tầng

Bản vẽ hoàn thiện Cibes
Kết luận: Tùy thuộc vào từng tải trọng, thành viên gia đình, diện tích nhà ở để chọn sản phẩm thang máy có tải trọng, dòng thang máy phù hợp với gia đình mình.
7. Báo giá thang máy không phòng máy
Giá thang máy không phòng máy từ 1.000.000.000 VNĐ, tùy thuộc vào các yếu tố như tải trọng, kích thước, thiết kế, vị trí lắp đặt, số điểm dừng, phụ kiện.......
- Nguồn gốc: Xuất xứ của thang máy gia đình là yếu tố quyết định phần lớn vào giá cả. Những dòng thang máy nội địa thường sẽ có chi phí rẻ hơn so với thang nhập khẩu nguyên chiếc hay dòng thang liên doanh.
- Vị trí lắp đặt: Ở những vị trí thang máy trong nhà càng thuận lợi trong công trình, việc lắp đặt diễn ra càng dễ dàng thì chi phí thấp hơn. Nếu phải thi công trong những vị trí khó tiếp cận, không bằng phẳng, chi phí sẽ cao hơn.
- Tải trọng, kích thước: Kích thước , tải trọng là một trong những yếu tố then chốt ảnh hưởng đến giá cả của thang máy. Vì vậy gia đình nên chọn tải trọng, kích thước phù hợp gia đình mình. Như với gia đình có từ 2 - 4 thành viên chọn thang máy tải trọng 300kg, gia đình từ 5-7 thành viên chọn tải trọng.
- Phụ kiện, nội thất thang máy : Nội thất bên trong thang máy như trang bị đèn, sàn thang, bảng điều khiển, họa tiết....là điểm thể hiện gu thẩm mỹ, cá tính của chủ đầu tư. Vì vậy, càng đầu tư lắp đặt nội thất bên trong thang, chi phí phát sinh sẽ càng lớn.
8. Mẫu thang máy không phòng máy
Dưới đây là các mẫu thang máy gia đình không phòng máy bạn có thể tham khảo

Thang máy Cibes với họa tiết hài hòa không gian tổng thể

Thang máy Cibes Air thiết kế phù hợp gia đình có diện tích hạn chế

Sản phẩm thang máy gia đình màu nâu be hiện đại

Sản phẩm mới thang máy Cibes S85 thiết kế hiện đại
9. Đơn vị cung cấp lắp đặt thang máy không phòng máy
Hiện nay, rất nhiều công ty cung cấp thang máy uy tín tại Việt Nam và Cibes cũng không phải là ngoại lệ. Với hơn 75 năm hình thành và phát triển, thương hiệu thang máy Thuỵ Điển đã được nâng tầm vượt bậc về mặt uy tín, chất lượng, đặc biệt là chính sách bảo hành hậu mãi:
- Khách hàng hoàn toàn có thể đảm bảo quyền lợi sau khi lắp đặt thang máy Cibes, hỗ trợ bảo hành toàn bộ linh kiện thang máy lên đến 05 năm đối với thang trong nhà và 02 năm đối với thang ngoài trời. Sau khi hết thời hạn bảo hành, khách hàng hoàn toàn có thể chủ động gia hạn theo gói của Cibes đề ra với mức giá ưu đãi. Mỗi dòng sản phẩm của Cibes có thời gian bảo hành khác nhau. Vui lòng liên hệ với chúng tôi để biết thêm chi tiết.
- Để đảm bảo tuổi thọ và sự an toàn cho thang, Cibes tiến hành bảo dưỡng 2-4 lần/ năm đối với mẫu thang lắp trong nhà và 3-5 lần/ năm cho mẫu thang lắp ngoài trời. Đặc biệt, quy trình bảo dưỡng hoàn toàn miễn phí nếu sản phẩm vẫn trong thời hạn bảo hành.
Hy vọng bài viết trên đây đã cung cấp cho bạn những thông tin cụ thể và chi tiết nhất về thang máy không phòng máy.
Xem thêm: 3 Thiết bị trong thang máy cần kiểm tra thường xuyên
Thông tin liên hệ: Cibes Lift Việt Nam - Công ty con Chính hãng
- Hotline: 18001754 – 0899.50.38.38
- Email: vietnam@cibeslift.com
- Website: https://cibeslift.com.vn
Hệ thống showroom:
- Showroom Hà Nội: P.303, Tầng 3, Tòa nhà HITC, số 239 Xuân Thủy, phường Cầu Giấy, Hà Nội
- Showroom HCM: Số 138, đường B2, KĐT Sala, phường An Khánh, TP.HCM
- Showroom Đà Nẵng: Số 438 Đường 2/9, phường Hòa Cường, TP. Đà Nẵng
- Showroom Hải Phòng: Số HD.68, KĐT Vinhomes Marina, P. An Biên, Hải Phòng
- Showroom Cần Thơ: 373 đường 30 tháng 4, Phường Tân An, TP. Cần Thơ
Câu hỏi thường gặp về thang máy không phòng máy
Nếu công trình nhà cao tầng, có không gian để xây thêm phòng máy ở tầng trên cùng, hoặc yêu cầu tải trọng lớn, thang máy có phòng máy sẽ là lựa chọn hợp lý vì khả năng bảo trì dễ hơn và chi phí linh kiện thấp hơn.
Rất phù hợp — vì loại thang máy không phòng máy không cần xây phòng máy trên mái, thường yêu cầu hố pit rất thấp hoặc không cần hố pit, nên thuận tiện lắp đặt trong công trình đã hoàn thiện.
Thang máy không phòng máy thường sử dụng công nghệ trục vít hoặc thủy lực để vận hành. Cả hai công nghệ đều đảm bảo an toàn và vận hành êm ái nếu được sản xuất đạt chuẩn và bảo trì định kỳ. Với công nghệ trục vít, thang có độ ổn định rất cao, ít rung lắc, tuổi thọ bền bỉ và được ưa chuộng tại châu Âu cho nhà ở dân dụng.
Với thang máy trục vít, bạn sẽ không cần phòng kỹ thuật riêng vì toàn bộ bộ phận máy móc đã được tích hợp sau vách bảng điều khiển, chạy cùng thang khi thang di chuyển. Do đó bạn sẽ không cần làm thêm phòng kỹ thuật riêng. Với thang máy gia đình sử dụng công nghệ cáp kéo, bạn sẽ cần xây phòng máy (hay còn gọi là phòng kỹ thuật) để chứa bộ phận máy kéo, tủ điển, v.v
Đánh giá và bình luận
6 đánh giá
Bạn có nhận xét gì về bài viết này
Bằng cách đăng ký các thông tin trên, bạn đã đồng ý cho phép Công ty TNHH Cibes Lift Việt Nam thu thập, sử dụng, và xử lý dữ liệu cá nhân theo các quy định trong Chính Sách Bảo Mật của Công ty.
.png)
.png)
.png)
.png)




Hồng Ngọc
31/03/2026 15:21
Bài này phân tích khá thực tế về thang máy không phòng máy đặc biệt là phần cấu tạo kích thước và so sánh với loại có phòng máy Ai đang phân vân giữa thẩm mỹ tiết kiệm không gian và chi phí thì nên tham khảo
Hiểu Minh
30/03/2026 12:02
Thang không tốn diện tích, dễ lắp đặt và sử dụng. Rất ứng Cibes khoản tư vấn rất nhiệt tình và hợp lý. 5 sao cho Cibes
Vương Tuấn
25/02/2026 09:24
Thang máy không phòng máy Cibes vừa giúp tiết kiệm diện tích không gian, tiết kiệm năng lượng điện tiêu thụ, đồng thời tăng tính thẩm mỹ, sang trọng. Quá đỉnh chóp
Lê Thị Kim Anh
16/09/2025 14:02
Mình đang tìm hiểu giữa hai loại thang máy: có phòng máy vs không phòng máy, và bài viết giúp mình hiểu rõ các điểm mạnh yếu. Thang không phòng máy của Cibes thực sự hợp với nhà cải tạo nhỏ, không muốn phá móng, muốn tiết kiệm không gian. Chỉ hơi lo lắng chi phí đầu tư và bảo trì sau này có cao hơn hay không.
Gia Long
25/08/2025 18:14
Mình dân kỹ thuật, tìm hiểu kỹ rồi, thấy dòng thang không phòng máy rất hợp cho nhà phố cải tạo khi không cần hố pit sâu, tiết kiệm không gian và điện năng, vận hành êm. Tuy nhiên, giá thành nhỉnh hơn và việc bảo trì sau này chắc sẽ hơi bất tiện so với thang truyền thống.