Tổng hợp 7 bản vẽ thang máy gia đình tiêu chuẩn và cách đọc đúng
Mục lục
Tóm tắt nhanh
- Thông thường, các loại bản vẽ của thang máy trên thị trường bao gồm: Bản vẽ kết cấu hố thang máy, bản vẽ cửa thang máy, bản vẽ CAD thang máy gia đình
- Với thang máy không hố pit như thang máy của Cibes sẽ có các bảng vẽ như: Bản vẽ giếng thang máy, bản vẽ cửa thang máy, bản vẽ bảng điều khiển thang máy
- Các ký hiệu trên bản vẽ đều có quy ước chung
- Để tránh nhầm lẫn khi tiếp cận bản vẽ lần đầu, nên đọc theo trình tự: bản vẽ mặt bằng phối cảnh tổng thể từng tầng, bản vẽ mặt cắt hai cạnh khu vực thang máy, bản vẽ chi tiết giếng thang, và cuối cùng là bản vẽ tổng thể thang máy.
1. Mẫu Bản vẽ thang máy gia đình trên thị trường
Bản vẽ thang máy tiêu chuẩn trên thị trường hiện nay gồm có bản vẽ kết cấu hố thang máy, bản vẽ cửa thang máy và bản vẽ CAD thang máy gia đình. Mời quý gia chủ theo dõi chi tiết các bản vẽ thiết kế dưới đây để tổng hợp các thông tin đầy đủ và có cái nhìn bao quát nhất.
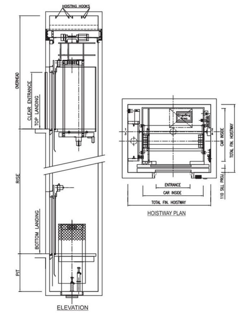
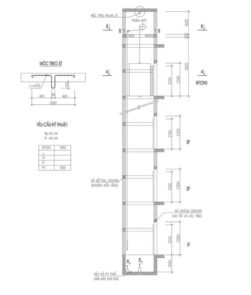
1.1. Bản vẽ kết cấu hố thang máy
Với bản vẽ kết cấu hố thang máy, các bộ phận sẽ bao gồm hố pit, hố thang, móng thang và phòng máy. Quý gia chủ lưu ý với mỗi bộ phận khác nhau sẽ có bản vẽ thiết kế riêng biệt.
1- Bản vẽ thiết kế hố thang máy
Bản vẽ thiết kế hố cầu thang máy có 2 loại thông dụng là bản vẽ mặt cắt ngang và bản vẽ mặt cắt dọc:
- Bản vẽ mặt cắt dọc hố thang: Trình bày toàn bộ đặc điểm, diện tích và kết cấu hố thang theo hình chiếu dọc. Các thông tin như độ cao từng tầng, chiều cao của phòng máy tại tầng trên cùng sẽ được thể hiện chi tiết. Gia chủ sẽ thấy được vị trí lắp đặt máy kéo, vị trí có gắn lò xo giảm chấn, cabin thang máy, đối trọng, dầm đỡ máy,...
- Bản vẽ mặt cắt ngang hố thang: Trình bày chi tiết kích thước chiều rộng và chiều sâu hố thang, ngoài ra còn có kích thước cửa hố thang trước khi lắp đặt và sau khi đã hoàn thiện.
Trên một mẫu bản vẽ thang máy gia đình hoàn chỉnh, các thông số quan trọng sẽ được trình bày chi tiết, hỗ trợ nhân viên lắp đặt dễ dàng và nhanh chóng. Dựa vào chính các thông số này, đội ngũ kỹ thuật viên sẽ có thể cân đối kích thước tiêu chuẩn thang máy, tính toán chính xác diện tích và kết cấu xây hố thang, đảm bảo tối ưu diện tích sử dụng của gia chủ.

Bản vẽ thiết kế hố thang máy gia đình thể hiện mặt cắt dọc - cắt ngang
2- Bản vẽ hố pit thang máy
Bản vẽ thiết kế hố pit thang máy cũng có 2 loại thông dụng gồm bản vẽ mặt cắt dọc và bản vẽ mặt cắt ngang:
- Với bản vẽ mặt cắt dọc của hố pit: Cho thấy độ sâu của hố pit, vị trí chứa phần đáy cabin thang máy và thiết bị giới hạn hành trình, vị trí lắp 2 cọc giảm chấn của thang máy.
- Với bản vẽ mặt cắt ngang của hố pit: Cho thấy chiều rộng của hố pit và phần nền móng bê tông.

Mặt cắt ngang và mặt cắt dọc trên bản thiết kế hố pit cầu thang máy
3- Bản vẽ móng thang máy
Móng thang máy sẽ được ép cọc cùng với móng nhà. Đây là quy trình thiết kế vô cùng quan trọng vì ảnh hưởng tới kết cấu chịu lực và độ ổn định hoạt động của thang máy sau này. Từ bước ép cột cần phải chú ý 4 góc là 4 cột và cần được thi công với độ sâu cọc phù hợp.

Bản vẽ móng thang máy chi tiết quý gia chủ có thể tham khảo
4- Bản vẽ hệ thống mẫu thang máy gia đình
Bản vẽ hệ thống thang máy gia đình nhập khẩu của phòng máy bao gồm 2 loại thông dụng, gồm có bản vẽ mặt cắt ngang và bản vẽ mặt cắt dọc:
- Với bản vẽ mặt cắt ngang phòng máy: Trình bày các chi tiết về thiết kế kích thước chiều rộng, chiều sâu phòng máy, vị trí quạt thông gió, lỗ thông gió, vị trí đặt hộp điện nguồn, vị trí đặt tủ điện.
- Với bản vẽ mặt cắt dọc phòng máy: Trình bày cấu tạo và vị trí lắp đặt phòng máy, vị trí gắn móc treo Palang, lỗ kéo máy.

Bản vẽ mặt cắt dọc phòng máy

Bản vẽ mặt cắt ngang và bản vẽ cắt dọc phòng máy
1.2. Bản vẽ cửa thang máy
Bản vẽ cửa thang máy thể hiện vị trí lắp đặt cửa thang và chiều rộng của cửa. Quý gia chủ có thể thảo luận cùng các kỹ thuật viên để tối ưu không gian hoặc thay đổi diện tích sử dụng thang máy trong ngôi nhà của mình

Bản vẽ cửa thang máy với 2 vị trí lắp đặt khác nhau
1.3. Bản vẽ CAD thang máy gia đình
CAD là viết tắt của Computer-aided design, nghĩa là những bản vẽ được thiết kế với sự hỗ trợ của máy tính. Hiện nay, xu hướng sử dụng các bản vẽ CAD thang máy gia đình đang ngày càng trở nên phổ biến nhờ tính ứng dụng cao. CAD tạo ra mô hình 3D và bản vẽ 2D, cho phép gia chủ và kỹ thuật viên có quan sát trực quan và chân thực nhất trước khi tiến hành thi công lắp đặt thang máy. Đồng thời các bước phân tích, mô phỏng và kiểm tra sẽ diễn ra dễ dàng hơn, góp phần tăng thêm độ chính xác so với cách vẽ tay truyền thống.

Mẫu bản vẽ CAD thang máy gia đình
>>>Download bản vẽ CAD thang máy Cibes Voyager V90 tại đây
2. Bản vẽ thiết kế cầu thang máy gia đình không hố pit Cibes
Bản vẽ thiết kế thang máy không hố pit Cibes sẽ bao gồm các bản vẽ giếng thang, cửa thang, bảng điều khiển và bản vẽ CAD. Chi tiết cho từng bản vẽ sẽ được Cibes giới thiệu tới quý gia chủ ngay sau đây.
2.1. Bản vẽ giếng thang máy Cibes
Bản vẽ mẫu giếng thang máy Cibes cho gia đình hoàn chỉnh sẽ trình bày về mặt cắt ngang, mặt cắt dọc của cạnh giếng thang, chi tiết mặt cắt chân cửa nhôm từng tầng và mặt đứng cho thấy kích thước thông thủy ô cửa chờ các tầng.

Bản vẽ thiết kế thang máy gia đình của dòng thang Cibes A4000

Bản vẽ giếng thang máy của Cibes A4000
Các bản vẽ thiết kế cầu thang máy gia đình sẽ tương đối khó đọc nếu quý gia chủ chưa có nhiều kinh nghiệm. Gia chủ hoàn toàn có thể hỏi các chuyên viên kinh doanh của Cibes, chúng tôi sẽ tư vấn thiết kế thang máy cụ thể nhất. Ngoài ra, quý gia chủ có thể liên hệ chuyên viên kinh doanh của Cibes, chúng tôi sẽ tư vấn cụ thể cho gia chủ từng bộ phận trên bản vẽ giếng thang máy Cibes A4000 ngay dưới đây:

Hướng dẫn cách đọc bản vẽ kết cấu giếng thang máy Cibes A4000
- Vị trí số 1 và số 2: Bản vẽ thể hiện 2 mặt cắt cạnh giếng thang B/D (E-E) và cạnh A/C (G-G).
- Vị trí số 3: Bản vẽ thể hiện mặt cắt chi tiết của chân cửa nhôm các tầng 2, 3 và 4 theo tỷ lệ 1:5.
- Vị trí số 4: Bản vẽ thể hiện mặt cắt chi tiết của chân cửa nhôm tầng 1 theo tỷ lệ 1:5.
- Vị trí số 5: Bảng kê kích thước thông thủy của ô chờ cửa các tầng từ 1 - 4.
- Vị trí số 6: Bản vẽ mặt đứng thể hiện kích thước thông thủy của ô chờ cửa.
Với bản vẽ giếng thang hoàn chỉnh, quý gia chủ sẽ hình dung được tổng quát nhất về toàn bộ công trình khi đưa vào thực tế, từ chiều cao từng tầng, kích thước phần giếng thang, kích thước ô chờ cửa,... Dựa vào bản vẽ, gia chủ có thể thảo luận cùng kỹ thuật viên để đưa ra giải pháp thi công sao cho phù hợp với kết cấu căn nhà nhất.
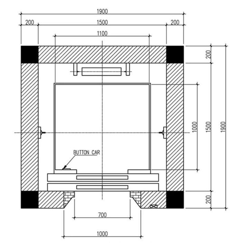
2.2. Bản vẽ cửa thang máy Cibes
Một bản vẽ cửa thang máy Cibes sẽ bao gồm bản vẽ chi tiết của các vị trí như cạnh cánh cửa, chân cửa, mặt bằng khi mở cửa, điểm an toàn cánh cửa và mặt bằng tổng thể thang.

Bản vẽ cửa thang máy A4000 Cibes tầng 1

Bản vẽ cửa thang máy A4000 Cibes tầng 2
Cibes sẽ hướng dẫn quý gia chủ cách đọc bản vẽ cửa thang máy cụ thể theo từng bộ phận:

Hướng dẫn cách đọc bản vẽ cửa thang máy Cibes A4000 theo từng bộ phận
- Vị trí số 1: Bản vẽ mặt đứng cánh cửa theo tỷ lệ 1:20.
- Vị trí số 2: Bản vẽ mặt bằng khi cánh cửa mở theo tỷ lệ 1:20.
- Vị trí số 3: Bản vẽ tiếp điểm an toàn của cánh cửa theo tỷ lệ 1:10.
- Vị trí số 4: Bản vẽ cạnh cánh cửa theo tỷ lệ 1:20.
- Vị trí số 5: Bản vẽ mặt bằng tổng thể thang cửa mở cạnh B theo tỷ lệ 1:30.
- Vị trí số 6: Bản vẽ chi tiết chân cửa theo tỷ lệ 1:5.
- Vị trí số 7: Bảng kê kiểu cửa, chủng loại cửa các tầng từ 1 - 4.
Gia chủ thông qua bản vẽ cửa thang máy chi tiết sẽ biết được kích thước cánh cửa, cùng với khoảng không gian cần thiết để cửa thang có thể mở một cách thoải mái. Nhờ những thông số này, gia chủ hoàn toàn có thể lựa chọn vị trí lắp đặt thang phù hợp nhất, sao cho vừa đảm bảo tiết kiệm diện tích, vừa không gây bất tiện cho quá trình sử dụng sau này. Nếu gia đình bạn đang sinh sống tại khu vực miền Trung và cần tư vấn lắp đặt thang máy phù hợp không gian nhà phố, đặc biệt tại Đà Nẵng, vui lòng tham khảo ngay thang máy đà nẵng từ Cibes để nhận hỗ trợ kỹ thuật và bản vẽ thiết kế chi tiết.
2.3. Bản vẽ bảng điều khiển thang máy Cibes
Bản vẽ bảng điều khiển của Cibes sẽ thể hiện các thông tin chi tiết cho thấy vách điều khiển thang, phần phím bấm và tay nắm, hình chiếu cạnh của toàn bộ hệ thống sàn thang, bản vẽ 2D hệ thống sàn thang và bản vẽ kích thước sử dụng của sàn thang.

Bản vẽ bảng điều khiển thang máy Cibes A4000
Để hiểu chi tiết hơn về phần bảng điều khiển của Cibes, quý gia chủ có thể tham khảo chú thích cho từng bộ phận theo hướng dẫn dưới đây:

Hướng dẫn cách đọc bản vẽ bảng điều khiển thang máy Cibes A4000
- Vị trí số 1: Phần vách điều khiển thang theo tỷ lệ 1:15.
- Vị trí số 2: Bộ phận phím bấm và tay nắm của vách điều khiển theo tỷ lệ 1:10.
- Vị trí số 3: Hình chiếu cạnh của toàn bộ hệ thống sàn thang theo tỷ lệ 1:5.
- Vị trí số 4: Bản vẽ 2D của hệ thống sàn thang theo tỷ lệ 1:15.
- Vị trí số 5: Bản vẽ kích thước sử dụng của sàn thang theo tỷ lệ 1:15.
Bản vẽ mang tới cái nhìn tổng quát nhất về phần vách bảng gồm phím bấm, tay nắm và toàn bộ hệ thống sàn thang. Quý gia chủ dựa vào những bản vẽ này sẽ xác định được kích thước cụ thể phần sàn thang và vị trí lắp đặt phần bảng điều khiển trong thang máy.
2.4. Bản vẽ CAD thang máy

Bản vẽ CAD kích thước sàn thang máy Cibes A4000

Tổng hợp bản vẽ CAD của thang máy Cibes A4000
Bản vẽ CAD của Cibes cung cấp là loại bản vẽ 2D. Không chỉ mô phỏng kết cấu và kích thước các bộ phận chuẩn xác hơn, những bản vẽ CAD còn mang tới cái nhìn trực quan nhất cho gia chủ. Quý gia chủ nếu như gặp khó khăn khi tham khảo các bản vẽ CAD hoàn toàn có thể liên hệ tư vấn thiết kế thang máy từ đội ngũ chuyên viên tại Cibes.
>>>Download bản vẽ CAD thang máy Cibes Voyager V90 tại đây
3. Cibes Lift - Đơn vị cung cấp thang máy gia đình cao cấp đến từ Thuỵ Điển
Cibes Lift Group, thành lập năm 1947 tại Gävle, Thụy Điển, là một trong những nhà sản xuất thang máy gia đình hàng đầu thế giới. Với hơn 75 năm kinh nghiệm, Cibes chuyên cung cấp các giải pháp thang máy trục vít tiết kiệm không gian, thiết kế tinh tế và dễ dàng tích hợp vào nhiều loại kiến trúc khác nhau. Thang máy trục vít của Cibes cho phép lắp đặt nhanh chóng và vận hành êm ái. Sản phẩm được nhập khẩu nguyên chiếc về Việt Nam, đảm bảo chất lượng cao và đáp ứng các tiêu chuẩn an toàn nghiêm ngặt, bao gồm:
- Chứng chỉ EC và chứng nhận của cơ quan kiểm định chất lượng thang máy tại Hà Lan LIFT INSTITUUT
- Theo tiêu chuẩn EN 81-41:2010 và EN 81-20:2020 và EU MD 2006/42/EC của Liên minh Châu Âu.
- Tất cả các quy định của nhà nước ban hành
Các mẫu thang máy của Cibes không chỉ đa dạng về kiểu dáng mà còn linh hoạt với 41 kích thước, phù hợp với cả không gian nhỏ hẹp và các công trình cao cấp. Gia nhập Việt Nam từ năm 2015, Cibes Lift Việt Nam đã chiếm một thị phần nhất định trên thị trường, góp mặt tại nhiều công trình ở khắp các tỉnh thành trên cả nước như Vinhomes Riverside, Vinhomes Ocean Park, Vinhomes Starlake, Vinhomes Green Bay, KDT Ciputra, Vinhomes Imperia,...

Công trình thang máy Cibes Voyager V80i tại Vinhomes Riverside Long Biên
Tại Việt Nam, Cibes Lift Việt Nam cung cấp dịch vụ hậu mãi toàn diện, bao gồm bảo hành lên đến 2 năm đối với dòng thang ngoài trời và lên đến 5 năm đối với dòng thang trong nhà. Sau khi lắp đặt thang máy, Cibes sẽ tiến hành bảo trì 4 lần/năm để đảm bảo công năng của máy cũng như sự an toàn cho người sử dụng. Trong thời gian bảo hành, nếu phát sinh lỗi do nhà nhà sản, khách hàng sẽ được thay thế, sửa chữa miễn phí.

Kỹ thuật viên của Cibes sẽ hỗ trợ lắp đặt, bảo hành, bảo trì cho khách hàng
Với bài viết trên đây, hy vọng trong lần tới quý gia chủ sẽ có thể đọc các mẫu bản vẽ thang máy gia đình dễ dàng và chính xác hơn. Với 70 năm kinh nghiệm trên thị trường quốc tế, quý gia chủ hoàn toàn có thể yên tâm khi đặt niềm tin vào thang máy gia đình Cibes.
Mọi thắc mắc về thông tin sản phẩm, chi tiết lắp đặt và thi công, mời quý gia chủ liên hệ Cibes thông qua các kênh liên lạc sau đây:
Cibes Lift Việt Nam - Công ty con Chính hãng
- Hotline: 18001754 - 0899.50.38.38
- Email: vietnam@cibeslift.com
- Website: https://cibeslift.com.vn
- Hệ thống showroom:
- Tại Hà Nội: P.303, Tầng 3, Tòa nhà HITC, số 239 Xuân Thủy, phường Cầu Giấy, Hà Nội
- Tại TP. Hồ Chí Minh: Số 138, đường B2, phường An Khánh, TP.HCM
- Tại Đà Nẵng: Số 438 Đường 2/9, phường Hòa Cường, TP. Đà Nẵng
- Tại Hải Phòng: Số HD.68, KĐT Vinhomes Marina, phường An Biên, Hải Phòng
- Tại Cần Thơ: 373 đường 30 tháng 4, Phường Tân An, thành phố Cần Thơ
Câu hỏi thường gặp về bản vẽ thang máy gia đình
Các bản vẽ kỹ thuật trong xây dựng luôn tồn tại những quy ước chung về ký hiệu, đảm bảo truyền tải tất cả thông tin chi tiết nhất chỉ trong một bản vẽ nhỏ.
Bản vẽ thang máy dùng quy ước ký hiệu để nén nhiều thông tin kỹ thuật trong một bộ hồ sơ. Để đọc nhanh và đúng, nên đi theo 4 bước sau:
- Bước 1: Xác định thông tin chung của bản vẽ:
- Tên bản vẽ: mặt bằng giếng thang, mặt cắt, bản vẽ cửa tầng, bản vẽ CAD…
- Tỷ lệ bản vẽ (ví dụ: 1:20, 1:50)
- Đơn vị đo lường, thường là milimet (mm)
- Bước 2: Đối chiếu bảng chú thích (Legend):
- Bảng chú thích giải thích ý nghĩa của các ký hiệu, đường nét và viết tắt.
- Mỗi bộ bản vẽ có thể có quy ước riêng theo tiêu chuẩn của nhà sản xuất.
- Bước 3: Tập trung vào các nhóm thông số quan trọng:
- Kích thước thông thủy giếng thang
- Kích thước cabin và diện tích sử dụng
- Kích thước và vị trí cửa tầng
- Cao độ sàn hoàn thiện từng tầng (FFL)
- Cao độ hố pit và chiều cao đỉnh giếng thang (nếu có)
- Bước 4: Đọc theo thứ tự từ tổng thể đến chi tiết:
- Mặt bằng tổng thể vị trí thang máy
- Mặt cắt đứng và mặt cắt ngang giếng thang
- Bản vẽ chi tiết cửa tầng, chân cửa, bảng điều khiển
- Bản vẽ CAD hoặc bản vẽ cấu hình tổng thể
Việc đọc theo trình tự này giúp hình dung chính xác vị trí lắp đặt và các yêu cầu kỹ thuật liên quan.
Khi tiếp cận bản vẽ thang máy, cần kiểm tra và đối chiếu các thông số quan trọng sau:
- Kích thước giếng thang
- Kiểm tra kích thước thông thủy theo đúng bản vẽ kỹ thuật
- Đảm bảo không bị thu hẹp do lớp hoàn thiện tường hoặc kết cấu bổ sung
- Kích thước và vị trí cửa tầng
- Đối chiếu chiều rộng, chiều cao cửa và cao độ lắp đặt
- Kiểm tra khoảng không gian mở cửa để đảm bảo vận hành thuận tiện
- Cao độ sàn hoàn thiện
- Xác định đúng cao độ sàn của từng tầng
- Tránh sai lệch dẫn đến việc cửa thang không đồng bộ với mặt sàn
- Yêu cầu về hố pit và chiều cao giếng thang
- Kiểm tra độ sâu hố pit (nếu có) và yêu cầu chống thấm
- Kiểm tra chiều cao tầng trên cùng để đảm bảo đủ điều kiện lắp đặt
- Đối chiếu với hiện trạng công trình
- So sánh bản vẽ với kích thước thực tế tại công trình
- Thực hiện điều chỉnh trước khi hoàn thiện phần xây dựng giếng thang
Trong trường hợp chưa quen với bản vẽ kỹ thuật, gia chủ nên trao đổi với đơn vị cung cấp để được giải thích chi tiết từng thông số và đảm bảo quá trình chuẩn bị công trình đáp ứng đầy đủ yêu cầu lắp đặt.
Bản vẽ thang máy kính vẫn tuân theo cấu trúc của bản vẽ thang máy tiêu chuẩn, bao gồm mặt bằng, mặt cắt và các bản vẽ chi tiết. Tuy nhiên, do sử dụng kết cấu khung thép và vách kính thay cho giếng thang xây bê tông, bản vẽ sẽ thể hiện rõ hơn các thành phần cấu tạo của hệ khung và vật liệu hoàn thiện. Để tìm hiểu về bản vẽ thang máy kính, khách hàng có thể tham khảo các bản vẽ thang máy tại Cibes Lift Việt Nam.

Bản vẽ thang máy sàn nâng Cibes Air ứng dụng công nghệ trục vít

Bản vẽ thang máy sàn nâng Cibes Air ứng dụng công nghệ trục vít
Đánh giá và bình luận
1 đánh giá
Bạn có nhận xét gì về bài viết này
Bằng cách đăng ký các thông tin trên, bạn đã đồng ý cho phép Công ty TNHH Cibes Lift Việt Nam thu thập, sử dụng, và xử lý dữ liệu cá nhân theo các quy định trong Chính Sách Bảo Mật của Công ty.








Thanh Độ
05/12/2024 13:56
Cibes làm việc rất chuẩn chỉnh, đợt làm cho mình bản vẽ chi tiết từng chi tiết, rất yên tâm